פרטים
| סוג הנכס: |
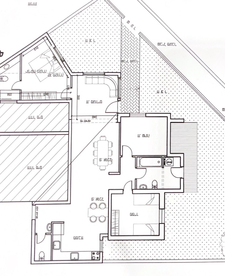
דירת גן למכירה |
| אזור: |
רמת בית שמש - ד2 |
| כתובת: |
ריש לקיש |
| מחיר שקלים: |
2,960,000₪ |
| כניסה: |
13/02/2029 |
| חדרים: |
4 |
| קומה: |
קרקע |
| שטח: |
120 מ"ר |
| אדריכלות ועיצוב פנים |
|
תוספות
| חניה: |
 |
| מיזוג: |
 |
| חצר/מרפסת גדולה: |
 |
| גודל חצר/מרפסת: |
140 מ"ר |
| סורגים: |
 |
| מעלית: |
 |
| מחסן: |
 |
| יח' דיור / הרחבה מיידית: |
 |
| כניסה פרטית ניתנת לחלוקה |
|
הערות תמונות ומפות
| הערות: |
דירת גן מהממת כניסה פרטית!. (לא מהבניין) שתי פרגולות שתי מרפסות סוכה ועוד שטח גינה גדול. 3 שירותים. |
| בקשת פרטים: |
|
|
הרשמו לסוכן החכם |
יצירת קשר |
| שם: |
שרון |
| טלפון: |
0523-621174 |
| אימייל: |
rentbetshemesh@013.net |
|